Concerten en andere mogelijkheden
De ruime Sint-Lambertuskerk leent zich uitstekend voor een optreden van een koor, solist of band. Veel regionale koren en muziekgroepen treden er op. Een rommelmarkt, een lezing, rustpunt tijdens een fiets- of wandeltocht, in de Sint-Lambertuskerk kan het allemaal.
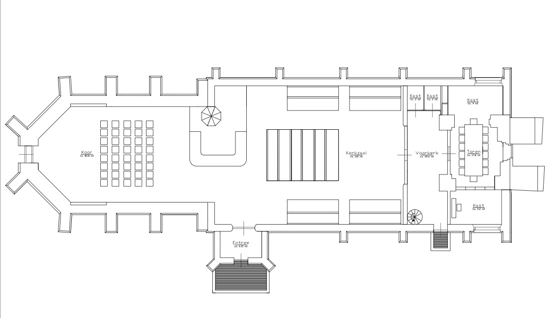
Maar ook een expositie, theatervoorstelling of een cursus, congres of netwerkbijeenkomst, alles past in de Sint-Lambertus. Of bijvoorbeeld een sfeervol diner, met tafels bekleed met wit linnen en kaarsen wordt dat een onvergetelijk en sfeervol samenzijn. Bekijk hier de plattegrond van het gebouw.
Trouwen in Kerk-Avezaath
In de historische Sint-Lambertuskerk kun je op alle dagen van de week trouwen; zowel burgerlijk als kerkelijk. Er is plaats voor zo’n 150 personen. Zelf de aankleding verzorgen is in overleg altijd mogelijk. Als je de piano of het orgel wilt gebruiken, is er een vaste organist beschikbaar. Een gastorganist is ook welkom. Er kan koffie, taart & champagne geserveerd worden en in de nabije omgeving zijn voldoende faciliteiten voor een receptie, feest of diner, bijvoorbeeld bij Dorpshuis De Avezathen op 200m afstand van de kerk, of bij Brasserie NU en Brasserie Poelzicht in Kapel-Avezaath.
Neem contact op met Conny Gerritse voor meer informatie over de mogelijkheden.



